
Minderheideweg 15
Beschreibung
In Minden entsteht ein stilvolles Zehnfamilienhaus, das modernen Wohnkomfort mit durchdachter Architektur verbindet. Die Wohnungen überzeugen durch offene, helle Räume, großzügige Grundrisse und Terrassen, die den Wohnraum sinnvoll erweitern und ein angenehmes Wohngefühl schaffen. Das Objekt richtet sich an Familien, Paare und alle, die Wert auf Qualität, Funktionalität und ein langfristig stabiles Wohnumfeld legen.
Ein besonderes Augenmerk wurde auf die nachhaltige Nutzung der Dachfläche gelegt. Die installierte Photovoltaikanlage nutzt die vorhandene Fläche effizient zur Eigenstromerzeugung und leistet damit einen aktiven Beitrag zur Reduzierung der laufenden Energiekosten. Gleichzeitig wird die Immobilie zukunftssicher aufgestellt wirtschaftlich sinnvoll ökologisch verantwortungsvoll und im Einklang mit aktuellen energetischen Anforderungen.
Ob als Rückzugsort nach einem langen Arbeitstag, als komfortables erstes eigenes Zuhause oder als solides Familiendomizil diese Wohnungen bieten alles was modernes Wohnen heute ausmacht. Lichtdurchflutete Räume eine hochwertige Ausstattung und ein klar strukturiertes Raumkonzept sorgen für Alltagstauglichkeit und Wohnqualität ohne Kompromisse.
Erleben Sie wie modernes Design effiziente Grundrisse und ein nachhaltiges Energiekonzept zu einem Wohnprojekt zusammengeführt wurden das auf Dauer überzeugt. Entdecken Sie Ihr neues Zuhause in Minden ein Ort der heute schon an morgen denkt.
Wohnungen
WOHNEINHEITEN
10
WOHNFLÄCHE
65,80 m² - 114,91 m²
Objektzustand
in Planung
Fertigstellung
2026
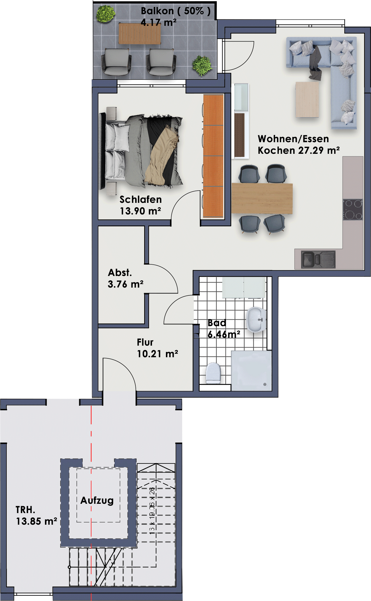
| STATUS | EINHEIT | ETAGE | ZIMMER | FLÄCHE | VERKAUFSPREIS | DOWNLOAD |
|---|---|---|---|---|---|---|
| VERFÜGBAR | 01 | EG | 3 | 89,07 m² | 346.768,10 € | GRUNDRISS |
| VERFÜGBAR | 02 | EG | 2 | 66,54 m² | 267.813,88 € | GRUNDRISS |
| VERFÜGBAR | 03 | EG | 2 | 66,54 m² | 267.813,88 € | GRUNDRISS |
| VERFÜGBAR | 04 | EG | 4 | 98,16 m² | 383.421,80 € | GRUNDRISS |
| VERFÜGBAR | 05 | 1OG | 4 | 97,14 m² | 377.487,21 € | GRUNDRISS |
| VERFÜGBAR | 06 | 1OG | 2 | 65,80 m² | 267.480,50 € | GRUNDRISS |
| VERFÜGBAR | 07 | 1OG | 2 | 65,80 m² | 267.480,50 € | GRUNDRISS |
| VERFÜGBAR | 08 | 1OG | 4 | 97,14 m² | 377.484,93 € | GRUNDRISS |
| VERFÜGBAR | 09 | Penthouse | 3 | 114,91 m² | 465.379,65 € | GRUNDRISS |
| VERFÜGBAR | 10 | Penthouse | 3 | 104,96 m² | 426.292,10 € | GRUNDRISS |
Ausstattung
Alles, was Ihr Herz begehrt: Die Ausstattung, die Ihre Wohnträume verwirklicht.

KfW-Energieeffizienzhaus 40EE
Luftwärmepumpe der Firma Heliotherm

Stufenloser Zugang
Komfortables Wohnen

Fußbodenheizung
Komfort, Wärme & Effizienz

3‐fach verglaste Wärmeschutzfenster
anthrazitfarben mit Sicherheitsbeschlag

Balkon
mit Edelstahlgeländer, blickdichtem Sicherheitsglas & frostsicherem Plattenbelag

Regendusche
Schwellen-lose Duschen

Gegensprechanlage
mit Videoüberwachung

Abluftanlage
wartungsarm

PKW Stellplätze
optional Stell-/Carportplatz

Separater Kellerraum
je Wohnung

offenes Wohnen
effizient und stilvoll

Terrasse
Freiluftbereich
Lage
Dieses attraktive Objekt entsteht im Minderheideweg in 32427 Minden. Schauen Sie gerne vorbei!
Ruhige, familienfreundliche und naturnahe Wohnlage mit hervorragender Anbindung an Infrastruktur und alle wichtigen Einrichtungen











